Leilighet
i Cannes (06400) - Ref. 666V6352A
Leilighet i Cannes
06,
Leilighet med 2 rom
på 52 m²
€460 000
Eksepsjonelt nybyggprogram i hjertet av Cannes, 15 minutter fra Croisetten!
Dette nye boligprosjektet i hjertet av Cannes har en perfekt beliggenhet i en rolig gate nær Novotel, rue Carnot. Her finner du den perfekte balansen mellom ro og byliv. Jernbanestasjonen er kun en fem minutters spasertur unna, noe som er svært praktisk dersom du lander i Nice og ankommer med tog fra den nærliggende stasjonen Saint-Augustin.
Salget av disse attraktive boligene har nettopp startet, så det er lurt å skynde seg dersom du er interessert!
Noen av de beste kjøpene, etter vår mening, er blant annet en romslig to-roms leilighet på 55 m² i andre etasje med to terrasser på til sammen 24 m², til 380 000 €, og en flott treroms leilighet på 91 m² med tre terrasser til 685 000 €.
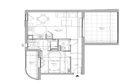
Leiligheten vi tilbyr i denne annonsen, er en lekker to-roms leilighet i tredje etasje. Den romslige stuen med åpen kjøkkenløsning åpner ut mot en vakker terrasse på 24 m². Utenfor soverommet ligger en koselig liten balkong, perfekt for å nyte morgenkaffen.
Salgsprisen inkluderer en parkeringsplass.
Bygget består av 12 leiligheter, hvorav en toppleilighet med store åpne terrasser og sol hele dagen. Den koster 1 950 000 €, som vi mener er litt dyrt, selv om den har hele fem terrasser på til sammen 142 m². Det finnes en i etasjen under som er enda større (183 m²), til 1 850 000 €, med et totalt terrasseareal på 89 m² (tre terrasser). 10 000 € per kvadratmeter for en leilighet her er høyt, men det finnes svært få slike leiligheter i Cannes sentrum, og i hvert fall ikke under 2 millioner euro. Denne er dessuten helt ny.
På bildene ser du hvilke bygg som ligger rett i nærheten, sett fra gateplan, samt bilder av de ulike etasjene. Vi kan også sende bilder tatt med drone for å simulere utsikten fra de ulike terrassene hvis en av disse leilighetene skulle friste.
Vi kan selvsagt sende plantegninger, priser og ytterligere informasjon dersom du forteller oss hvor mange soverom du trenger.
Utbyggeren forplikter seg til å tilby høy kvalitet, med mulighet for å tilpasse leilighetene etter kjøpers ønsker. Flere løsninger er tilgjengelige for hver etasje, med priser fra 380 000 € til 950 000 €, og boarealer mellom 52 og 112 m².
Alle leilighetene kan leveres med garasje. Tillegget er fra 20 000 € til 70 000 €, avhengig av garasjestørrelse og hvor de ligger i underetasjen. Garasjeanlegget er over to plan, med toppmoderne bilheisløsning.
Dette prosjektet er designet med et lavt miljøavtrykk, moderne teknologi og materialer av høy kvalitet. Du vil også få fritak fra eiendomsskatt i to år, samt en ti års byggeteknisk garanti.
Leveringsdato er ennå ikke fastsatt, men den er planlagt til slutten av 2025. Grip denne unike muligheten til å bo eller investere i et av de mest ettertraktede områdene i Cannes!
Kjøper du eller selger du en eiendom gjennom FranskBolig, får du som norsk kunde tilgang til mange tjenester du ikke finner andre steder, til en fornuftig pris. Mange av våre tjenester til kjøper er kostnadsfrie (les mer på www.franskbolig.no/tjenester-kjoper).
På www.franskbolig.no/fordelsregister kan du i tillegg velge to ekstra fordeler på toppen av alt det FranskBolig tilbyr alle norske kunder.
Les gjennom vår kjøperguide på 354 sider på www.franskbolig.no.
Mer detaljer
- Oppholdsrom: 34 m²
- Terrasseområde: 18 m²
- Hoved himmelretning: Øst til vest
- Standard: Veldig høy standard
- Bygningsstaten: ny
- Etasje: Fjerde
- Antall etasjer: 3 etasjer
- 1 soverom
- 2 terrasser
- 1 dusjrom
- 1 toalett
- 1 parkeringsplasse
Stikkord
- vinduer med dobbellagsglass
- gangavstand til strand
- stille og rolig
- ny
- butikker i gangavstand
- klimaanlegg















